5911








CNDS5911吊具技术参数

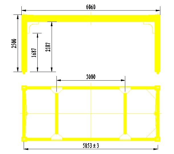
吊具名称

框架箱吊具

吊具型号(订货号)

CNDS5911

适用集装箱

20英尺

额定起吊重量

35 吨

吊具自重

2.6 吨

旋锁方式

ISO标准浮动锁 手动拉链驱动

超高

2 米

环境温度

-30℃~50℃

CNDS5911吊具说明

如果集装箱只有底板而没有立柱,或者集装箱中的货物超高;这时普通吊具无法使用。
CNDS5911吊具就是专门为此种场合设计的。

CNDS5911吊具可与普通吊具配合使用,也可独立的使用。

其它情况与CNDS3系列吊具相同。

浏览次数:6189